С Вами с 1993 года!
0
Статистика просмотров:
108
1-комнатная квартира 36.9 м², этаж 6/27
Объект № 1-91630
Купчино
г Санкт-Петербург, пр-кт Витебский, д. 101, корп. 4, стр. 1
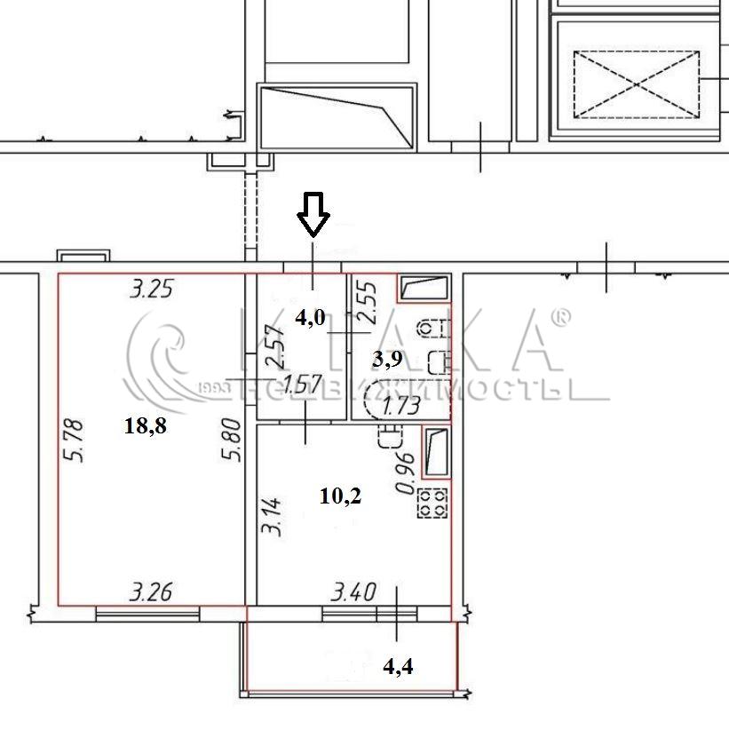
36.9м² / 18.8м²
Общая/Жилая10.2м²
Кухня2.62м
Потолкисовмещен.
Санузелда
Балкон6/27
Этажда
Лифт2016г.
Год постройки
Однокомнатная квартира в ЖК комфорт-класса "Квартет" 2016 года постройки. Жилой комплекс расположен в Московском районе, максимально близко к метро и ж/д платформе Купчино - 4 минуты пешком. Разумная планировка, большая жилая комната, квадратная кухня, просторный совмещенный санузел и застекленная лоджия с утеплённым полом. Квартира в хорошем состоянии. Квартира соответствует фото и освобождена собственником.Отличная транспортная и социальная инфраструктура. Встречная покупка - ОБЪЕКТ НАЙДЕН. Документы готовы к сделке!Никто не зарегистрирован.Звоните - договоримся о просмотре. Ключи у агента.С удовольствием отвечу на интересующие вас вопросы!
загрузка...
