0

+7 (812) 740-70-40

Единый диспетчерский центр
0

8 (800) 333-98-00

Звонок по России бесплатный



e-mail для клиентских обращений:
call@itaka.ru

e-mail для официальных писем:
officeitaka@itaka.ru

Центральный офис:
Коломяжский пр. 15 кор. 2
© 2020 АН «Итака»
Статистика просмотров:
14

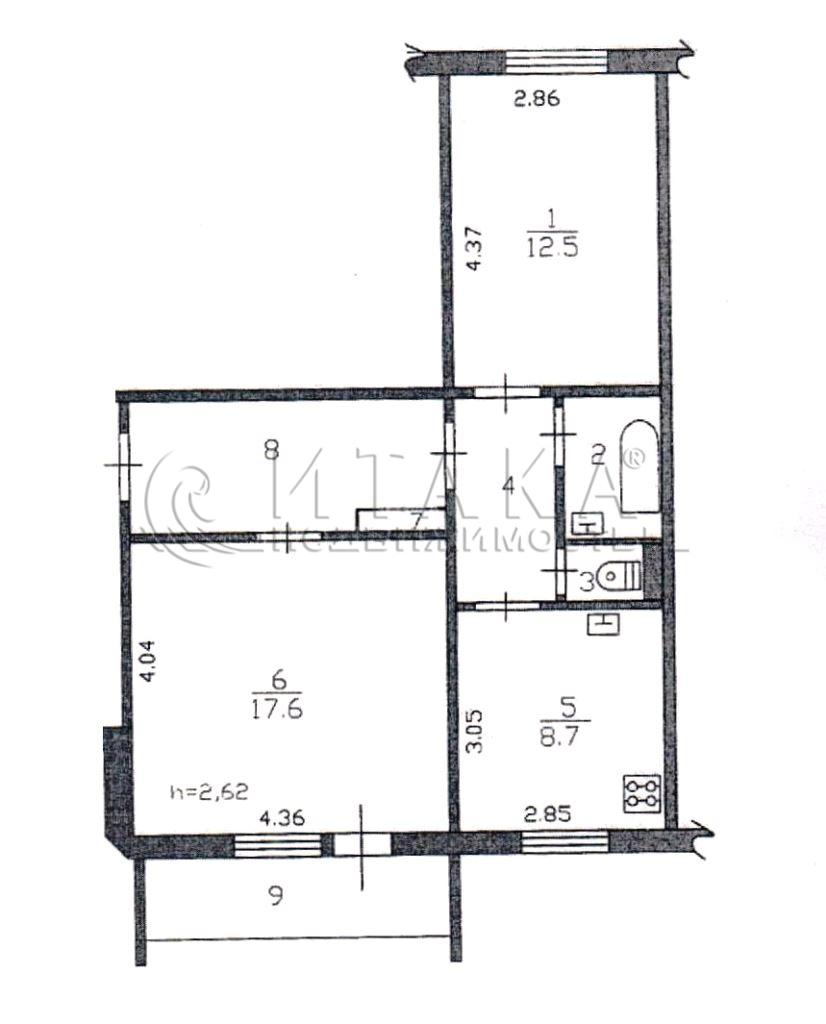
2-комнатная квартира 54.5 м², этаж 5/5

Объект № 1-92162

Размещен: 15.10.2025

Площадь Ленина обл Ленинградская, р-н Приозерский, п Саперное, ул Школьная, д. 1, лит. А

Цена: 3 500 000 ₽

64 220 ₽/м²

54.5м² / 30.1м²

Общая/Жилая

8.7м²

Кухня

-

Потолки

совмещен.

Санузел

да

Балкон

5/5

Этаж

нет

Лифт

-

Год постройки
Приозерский район, посёлок Сапёрное,предлагается к продаже отличная двухкомнатная квартира с просторной эргономичной планировкой. Квартира расположена на пятом этаже панельного дома на краю посёлка, что обеспечивает шикарные,неповторимые пейзажи сменяющие друг друга, т.к. перед домом нет никаких строений.
Квартира. Общая площадь 54,5 кв.м., комнаты 17,6 12,5 кв.м., просторная кухня 8,7 кв.м. Большой,застеклённый, утеплённый балкон. Произведена замена всей электропроводки, новые трубы и батареи, приборы учёта. Выполнен частично ремонт, натяжные полки, ламинат. Кухня, с/у и большая комната готовы к эксплуатации. При входе в квартиру закрывающийся тамбур на три квартиры.
Дом. Отремонтирован подъезд и кровля(капитальный ремонт) летом 2025 года.
Один собственник, прямая продажа, квартира с момента постройки дома в одних руках. Документы готовы к сделке. Готовы к разумному торгу.
Дорога от Спб займёт 45 минут на автомобиле.
Звоните , чтобы договориться о времени просмотра и задать вопросы если они остались)
14084 +7 (812) 740-70-40
14084

14084

1-92162
загрузка...

Похожие предложения