0

+7 (812) 740-70-40

Единый диспетчерский центр
0

8 (800) 333-98-00

Звонок по России бесплатный



e-mail для клиентских обращений:
call@itaka.ru

e-mail для официальных писем:
officeitaka@itaka.ru

Центральный офис:
Коломяжский пр. 15 кор. 2
© 2020 АН «Итака»
Статистика просмотров:
10

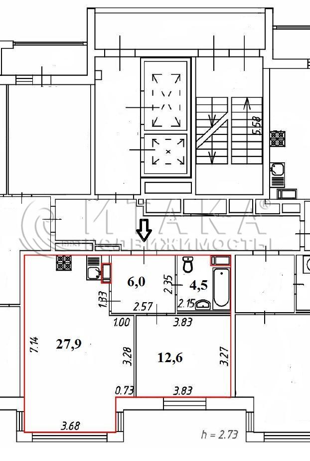
1-комнатная квартира 51 м², этаж 3/12

Объект № 1-92273

Размещен: 15.10.2025

Комендантский проспект г Санкт-Петербург, пр-кт Авиаконструкторов, д. 54, стр. 1

Цена: 17 850 000 ₽

350 000 ₽/м²

51м² / 12.6м²

Общая/Жилая

27.9м²

Кухня

2.73м

Потолки

совмещен.

Санузел

нет

Балкон

3/12

Этаж

да

Лифт

2022г.

Год постройки
Продается большая однокомнатная квартира — настоящая 2 евро! — в красивом современном технологичном Жилом комплексе бизнес класса «Modum», 2022 года постройки. Элегантные мраморные лобби, стильные парадные и лифтовые группы, лапомойки для домашних питомцев, кладовые, закрытая охраняемая территория без машин, отапливаемый подземный паркинг, в который можно спуститься на лифте, SPA и бассейн в самом комплексе, детские площадки, ландшафтный дизайн дворовых территорий, высокие потолки, всего четыре квартиры на этаже, и в дополнение прекрасно развитая социальная и транспортная инфраструктура — это и многое другое делает ЖК «Modum» местом, где хочется жить! Для жителей есть всё необходимое — несколько супермаркетов, кафе, булочная, кондитерская, салоны красоты, барбершоп, фитнес-клубы, пункты выдачи заказов маркетплейсов, 3 детских сада, 2 школы, одна из который с востребованным IT уклоном. Рядом с домом эко-тропа, Юнтоловский заказник, в 10 минутах выезд на КАД и ЗСД, планируется открытие станции метро «Шуваловский проспект».
Квартира с дизайнерским ремонтом, где на площади 51 кв.м. расположились уютная кухня-гостиная 28 кв.м., спальня, прихожая, просторный санузел, есть вся необходимая для проживания мебель и техника. Деревянные качественные окна, электронный входной замок по отпечатку пальца, управляемый дистанционно, система освещения «умный дом», водонагреватель на 80 литров, продуманные места для хранения.
Один собственник, приобретал у застройщика!
Звоните — обязательно ответим на все интересующие Вас вопросы и покажем, чтобы Вы сами оценили все достоинства квартиры!
7832 +7 (812) 740-70-40
7832

7832

1-92273
загрузка...

Похожие предложения