С Вами с 1993 года!
0
Статистика просмотров:
255
1-комнатная квартира 30.7 м², этаж 2/5
Объект № 1-92582
Размещен: 26.02.2026
Беговая
г Санкт-Петербург, г Кронштадт, ул Красная, д. 15
Цена: 5 500 000 ₽
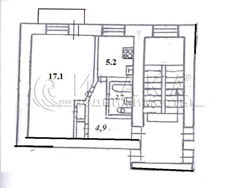
179 153 ₽/м²30.7м² / 17.1м²
Общая/Жилая5.2м²
Кухня2.5м
Потолкисовмещен.
Санузелда
Балкон2/5
Этажнет
Лифт1965г.
Год постройки
Предлагаем Вашему вниманию 1-комнатную квартиру в исторической части города на 2 этаже 5-ти этажного кирпичного дома. Квартира для небольшой семьи. В доме два подъезда. Окна выходят на юго-запад во двор, установлены стеклопакеты, балкон застеклен. Есть кладовые для хранения вещей. Установлены счетчики на воду, двухтарифный эл. счетчик. Квартира продается с мебелью и техникой. Рядом с домом школа, детсад, магазин. В шаговой доступности Летний сад, парк "Патриот", Морской собор, Петровский парк, Квартира без обременений, 1 взрослый собственник.Звоните, чтобы узнать больше и организовать просмотр.
загрузка...
